Host & Stay - Sleepers @ No.8
Preview only — see all hotel photos
See all 18 photos
Afficher l'hôtel sur la carte
Host & Stay - Sleepers @ No.8
La villa Host & Stay - Sleepers @ No.8 Pickering accueillante offre un accès rapide à divers sites de la ville, tels que le Musée de Beck Isle, situé à 5 minutes de marche.
Dans la villa accueillante, vous serez à 50 mètres de North Yorkshire Moors Railway et à 800 m de la galerie Gillies Jones Glass. Villa se trouve à moins de 4 km de lieux de culte tels que l'église St Hilda. La Église de Pickering est un autre point d'intérêt à explorer, qui est dans un rayon de 350 mètres.
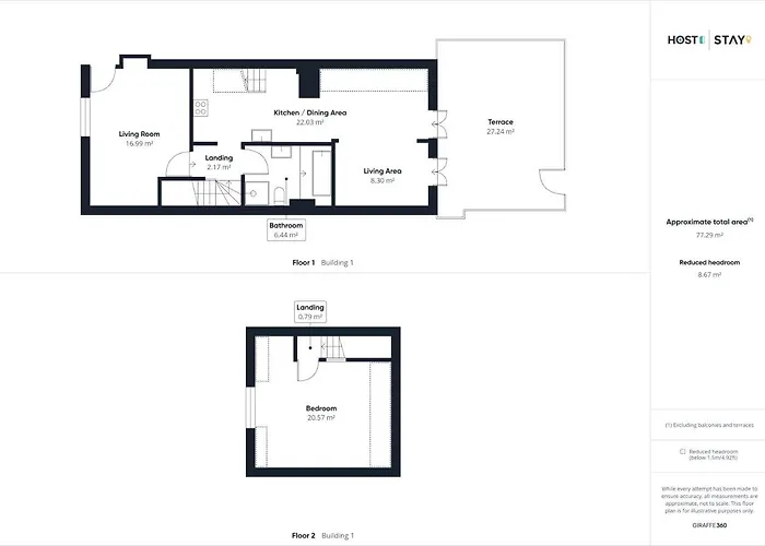
Le site comprend une salle de bains avec une toilette séparée, une douche et une machine à laver. Les salles de bains sont également dotées des draps de bain pour votre confort.
La villa Host & Stay - Sleepers @ No.8 est équipée d'une bouilloire électrique, d'un réfrigérateur et de la vaisselle dans une cuisine équipée. Cette villa se trouve près d'Elizabeth Botham's Tea Rooms, où vous pourrez déguster divers repas. Grâce à l'arrêt de bus The Ropery, situé juste à côté de cette villa Host & Stay - Sleepers @ No.8, vous pourrez facilement explorer Pickering.
Équipements
Caractéristiques principales
- Wi-Fi
- Animaux domestiques interdits
Équipements
- Locaux non-fumeurs
- Wi-Fi
- Parking
- Arrivée et départ VIP
- Animaux non admis
- Accès par clé
- Bouilloire
- Ustensiles de cuisine
- Chauffage
- Salon
- Équipements pour café et thé
- Table à manger
- Service de repassage
- Lave-linge
- TV LCD
- Sol moquetté
Politique
Carte
Attractions locales
Sites d'intérêt
- Parc à thème Flamingo Land (4,5 km)
Aéroports
- Aéroport de Durham Tees Valley (83 km)
Gares
- Pickering Railway Station (100 m)
Commentaires
Commentaires 100% Vérifiés